Việc thiết kế xưởng giặt công suất 3 – 5 tấn/ngày (tương đương phục vụ khoảng 1.000 – 1.500 phòng khách sạn 5 sao) đòi hỏi sự giao thoa khắt khe giữa kỹ thuật cơ khí, công nghệ hóa lý và tư duy quản trị dòng tiền. Tại Siêu Thị Máy Giặt Công Nghiệp, chúng tôi thiết kế giải pháp lợi nhuận, cung cấp những phương án đầu tư tối ưu nhất. Bài viết này là lộ trình chi tiết nhất để bạn sở hữu một xưởng giặt chuẩn 5 sao, tối ưu từng đồng chi phí vận hành.
Xem nhanh
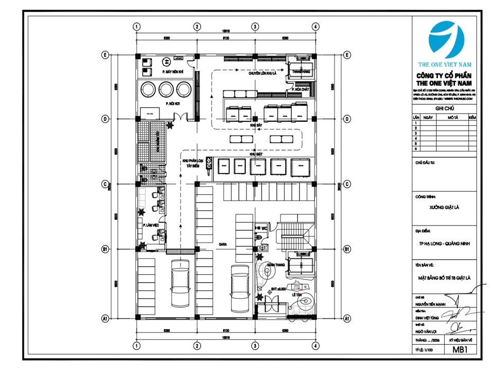
I. TẦM NHÌN QUY HOẠCH: BIẾN KHÔNG GIAN THÀNH CÔNG SUẤT
Một sai lầm phổ biến của các chủ đầu tư là “mua máy trước, xây xưởng sau”. Điều này dẫn đến tình trạng máy móc bị “nhồi nhét”, gây tắc nghẽn quy trình và lãng phí diện tích.
1. Diện tích và Địa điểm: “Tấc đất tấc vàng”
Với công suất 3-5 tấn/ngày, bạn cần diện tích thực tế từ 400m² đến 600m².
- Chiều cao trần: Tối thiểu 4.5m để lắp đặt hệ thống đường ống hơi, đường ống cấp thoát nước và thông gió.
- Nền móng: Phải chịu được tải trọng tĩnh và động cực lớn từ các máy giặt 120kg (khi vắt tốc độ cao). Bê tông mác 300 với độ dày ít nhất 20cm là yêu cầu cơ bản.
2. Nguyên lý “Dòng chảy không giao cắt”
THIẾT KẾ XƯỞNG GIẶT 3-5 TẤN/NGÀY thì đây là tiêu chuẩn quốc tế bắt buộc. Đồ vải bẩn và đồ vải sạch tuyệt đối không được đi chung một lối, không được nằm chung một mặt phẳng.
- Phân khu Bẩn: Tiếp nhận, phân loại đồ theo chất liệu (Cotton, Poly, đồ cao cấp), xử lý vết bẩn khu trú.
- Phu khu Sạch: Nơi đặt máy sấy, máy là lô, máy gấp và kho lưu trữ.
- Vách ngăn vật lý: Phân khu rõ ràng đổ bẩn và đồ sạch, lối giao thông thuận tiện, quy trình vận hành xuyên suốt
Chỉ cần nhìn vào sự phân khu khoa học và luồng một chiều, chủ đầu tư khách sạn 5 sao sẽ biết xưởng giặt của bạn đáp ứng được tiêu chuẩn vệ sinh dịch tễ khắt khe nhất của họ.


II. DANH MỤC THIẾT BỊ CHỦ LỰC
Đừng mua chiếc máy rẻ nhất, hãy mua chiếc máy có Tổng chi phí sở hữu thấp nhất trong 10 năm.
1. Máy giặt vắt công nghiệp
Để xử lý 3-5 tấn/ngày trong 2 ca (16 tiếng), bạn cần cấu hình module linh hoạt:
- Cấu hình đề xuất: 02 máy 120kg, 02 máy 50kg và 01 máy 25kg (để xử lý các mẻ lẻ hoặc đồ vải cao cấp).
- Công nghệ vắt cao: Lực G phải đạt trên 350. Tại sao? Vì lực vắt càng lớn, lượng nước còn lại trong vải càng ít (dưới 50%). Điều này giúp máy sấy giảm được 15-20 phút hoạt động mỗi mẻ, trực tiếp cắt giảm 30% hóa đơn tiền hơi/điện.
2. Máy sấy công nghiệp
Máy sấy thường là “kẻ ngốn năng lượng” nhất xưởng.
- Công suất: Luôn phải lớn hơn công suất máy giặt 20% để bù đắp thời gian nạp/dỡ đồ.
- Tính năng cảm biến độ ẩm: Máy tự động dừng khi vải đạt độ khô lý tưởng, tránh việc sấy quá mức (Over-drying) gây xơ cứng sợi vải và lãng phí năng lượng.
3. Máy là ga đa trục – “Gương mặt” của Resort
Khách sạn 5 sao không chấp nhận một tấm ga giường còn nếp nhăn.
- Lựa chọn: Máy là lô 2 hoặc 3 trục với đường kính quả lô lớn (800mm – 1200mm).
- Ưu điểm: Tốc độ là nhanh (lên đến 30m/phút), tạo độ bóng sáp cho ga giường cotton, mang lại cảm giác sang trọng tối đa cho khách lưu trú.
4. Máy gấp tự động
Với 5 tấn đồ vải, bạn không thể dùng sức người để gấp tay.
- Hiệu quả: Một máy gấp tự động có thể thay thế 4-6 nhân công. Ga giường sau khi ra khỏi máy là được gấp vuông vức, đóng gói màng co ngay lập tức, đảm bảo tính thẩm mỹ tuyệt đối.
III. HỆ THỐNG PHỤ TRỢ: “NGƯỜI HÙNG THẦM LẶNG”
80% sự cố xưởng giặt không đến từ máy giặt, mà đến từ hệ thống phụ trợ kém chất lượng.
1. Hệ thống Lò hơi – Nguồn sống của xưởng
Thay vì dùng điện trở nhiệt, lò hơi là giải pháp tiết kiệm nhất cho xưởng 3-5 tấn.
- Lựa chọn: Lò hơi tầng sôi hoặc lò hơi đốt Gas/Dầu công suất 500-800kg hơi/giờ.
- Lợi ích: Cung cấp nhiệt lượng sâu, ổn định cho máy sấy và máy là lô. Chi phí vận hành chỉ bằng 60% so với dùng điện trực tiếp.
2. Xử lý nước trung tâm
Nước cứng là “kẻ sát nhân” thầm lặng của đồ vải.
- Cơ chế: Hệ thống lọc trao đổi ion loại bỏ Canxi và Magie.
- Kết quả: Vải luôn mềm mại, không bị ố vàng, tiết kiệm 20% lượng hóa chất giặt và bảo vệ các van điện từ của máy móc khỏi bị đóng cặn.
IV. 9 CHIẾN LƯỢC TỐI ƯU CHI PHÍ VẬN HÀNH ĐỘT PHÁ
Để xưởng giặt thực sự mang lại lợi nhuận, chủ đầu tư cần áp dụng đồng bộ 9 chiến lược mà chúng tôi đã đúc kết:
- Thu hồi nhiệt (Heat Recovery): Tận dụng hơi nước ngưng tụ và nhiệt từ nước xả để đun nóng nước cấp đầu vào.
- Tái chế nước: Sử dụng nước xả cuối (còn khá sạch) cho chu kỳ giặt sơ của mẻ tiếp theo. tiết kiệm 40% nước sạch.
- Bơm định lượng tự động: Kiểm soát hóa chất bằng máy tính, chính xác đến từng ml, triệt tiêu lãng phí và lỗi con người.
- Bảo trì dự đoán (IoT): Cảm biến thông minh cảnh báo sớm các hư hỏng cơ khí qua điện thoại, tránh tình trạng dừng máy đột ngột.
- Số hóa quản trị (RFID): Gắn chip vào đồ vải để kiểm soát vòng đời và chống thất lạc – nỗi lo lớn nhất của các quản lý buồng phòng (Housekeeping).
- Điện mặt trời áp mái: Tận dụng diện tích xưởng để giảm 30% chi phí điện năng ban ngày.
- Đào tạo nhân sự đa năng: Một nhân viên có thể vận hành nhiều khâu, giúp linh hoạt định biên nhân sự.
- KPI Chi phí trên mỗi kg (CPK): Theo dõi sát sao chỉ số chi phí/kg đồ vải để phát hiện ngay các điểm rò rỉ tài chính.
- Dịch vụ giá trị gia tăng: Tận dụng máy móc để nhận thêm đồ giặt của khách (Guest Laundry) hoặc giặt hấp đồ hiệu để tăng nguồn thu.

Xem thêm bài viết liên quan:
- 9 Chiến Lược Tối Ưu Chi Phí Vận Hành Xưởng Giặt Công Nghiệp 2026
DỰ TOÁN CHI PHÍ MỞ XƯỞNG GIẶT LÀ CÔNG NGHIỆP CHO KHÁCH SẠN & RESORT: TỪ A-Z (CẬP NHẬT 2026)
V. DỰ TOÁN ĐẦU TƯ VÀ BÀI TOÁN KINH TẾ
Một xưởng giặt 3-5 tấn/ngày tiêu chuẩn quốc tế yêu cầu mức đầu tư:
- Thiết bị chính (Hãng Paros/Cleantech): ~4.5 tỷ – 7 tỷ VNĐ.
- Hệ thống phụ trợ (Lò hơi, xử lý nước, điện, nước): ~1.5 tỷ – 2.5 tỷ VNĐ.
- Hạ tầng nhà xưởng & PCCC: Tùy thực tế mặt bằng.
Phân tích hoàn vốn: Với giá giặt gia công trung bình hiện nay (từ 8.000đ – 12.000đ/kg), một xưởng vận hành 70% công suất sẽ đạt điểm hòa vốn sau 36 – 42 tháng. Sau thời gian này, xưởng giặt chính là một “mỏ vàng” ròng cho doanh nghiệp.

VI. CÁC CÂU HỎI THƯỜNG GẶP TỪ CHỦ ĐẦU TƯ
Q: Tại sao tôi nên đầu tư máy gấp tự động trong khi nhân công Việt Nam còn rẻ?
A: Nhân công có thể rẻ nhưng không ổn định và dễ sai sót. Máy gấp tự động đảm bảo 1.000 tấm ga được gấp y hệt nhau, không mệt mỏi, không nghỉ lễ, giúp nâng tầm hình ảnh chuyên nghiệp của Resort trong mắt khách hàng.
Q: Lò hơi loại nào là tốt nhất hiện nay?
A: Cho xưởng giặt, lò hơi đốt Gas hoặc Dầu là tối ưu nhất vì tính sạch sẽ, áp suất hơi ổn định và khả năng tự động hóa cao, không gây bụi bẩn như lò đốt than củi.
KẾT LUẬN: HÀNH TRÌNH VẠN DẶM BẮT ĐẦU TỪ MỘT BẢN THIẾT KẾ ĐÚNG
THIẾT KẾ XƯỞNG GIẶT 3-5 TẤN/NGÀY là một bài toán tổng thể. Đừng để một bản vẽ sai lệch hay một chiếc máy kém chất lượng làm hỏng kế hoạch kinh doanh triệu đô của bạn. Thiết kế xưởng giặt là một bộ môn nghệ thuật kết hợp với khoa học. Đừng để những sai lầm trong bản vẽ khiến bạn phải trả giá bằng lợi nhuận hàng tháng.
Nếu bạn đang ở giai đoạn “đặt những viên gạch đầu tiên” hoặc muốn “lột xác” xưởng giặt hiện tại, hãy để chúng tôi giúp bạn
Tại Siêu Thị Máy Giặt Công Nghiệp, chúng tôi đồng hành cùng bạn từ những viên gạch đầu tiên cho đến khi mẻ giặt sạch đầu tiên xuất xưởng. Sự thành công của bạn chính là sứ mệnh của chúng tôi.
- Hotline: 0904 566 536 (Mr Tùng 24/7)
- Website: sieuthimaygiatcongnghiep.com
- Địa chỉ map: Siêu thị máy giặt công nghiệp
- Youtube: Siêu Thị Máy Giặt Công Nghiệp
- Facebook: Siêu Thị Máy Giặt Công Nghiệp
- Email: Sieuthimaygiatcongnghiep@gmail.com
Bài viết tương tự:
9 Chiến Lược Tối Ưu Chi Phí Vận Hành Xưởng Giặt Công Nghiệp 2026
DỰ TOÁN CHI PHÍ MỞ XƯỞNG GIẶT LÀ CÔNG NGHIỆP CHO KHÁCH SẠN & RESORT: TỪ A-Z (CẬP NHẬT 2026)
QUY TRÌNH VẬN HÀNH XƯỞNG GIẶT LÀ CÔNG NGHIỆP CHO KHÁCH SẠN, RESORT
ĐẦU TƯ XƯỞNG GIẶT LÀ CÔNG NGHIỆP CHO KHÁCH SẠN & RESORT: 10 YẾU TỐ VÀNG ĐỂ THÀNH CÔNG
Báo Cáo Dự Án 2025: Siêu Thị Máy Giặt Công Nghiệp Khẳng Định Vị Thế Đối Tác Top 1
SO SÁNH GẤP KHĂN GA THỦ CÔNG VÀ BẰNG MÁY
XƯỞNG GIẶT ĐẦU TƯ MÁY GẤP KHĂN GẤP GA VÀ HOÀN VỐN SAU 12 THÁNG
Cách Chọn Máy Gấp Khăn Ga Đúng Công Suất: Tránh Lãng Phí Hàng Trăm Triệu
Có Nên Đầu Tư Máy Gấp Khăn, Máy Gấp Ga Ngay Lúc Này? Phân Tích Thực Tế Từ Vận Hành Xưởng Giặt
CHUYÊN GIA CUNG CẤP GIẢI PHÁP GIẶT LÀ CÔNG NGHIỆP - ĐÁP ỨNG MỌI TIÊU CHUẨN ĐẤU THẦU KHẮT KHE NHẤT
MÁY GIẶT CÔNG NGHIỆP CHO TRƯỜNG HỌC: HIỆN ĐẠI, AN TOÀN, TIẾT KIỆM NHẤT 2025
QUY TRÌNH HOẠT ĐỘNG CỦA XƯỞNG GIẶT CÔNG NGHIỆP
MÔ HÌNH XƯỞNG GIẶT LÀ HIỆU QUẢ–GIẢI PHÁP TỪ XƯỞNG GIẶT LÀ CÔNG NGHIỆP
Khách Sạn 100 Phòng: Chọn Máy Giặt – Máy Sấy Công Nghiệp Nào Để Tối Ưu?
Khách Sạn 200 Phòng Tối Ưu Vận Hành: Setup Phòng Giặt Đúng Chuẩn Là Chìa Khóa!
Giải Pháp Giặt Là Cleantech: Tăng Trải Nghiệm Khách, Giảm Khiếu Nại Về Đồ Vải!
Hệ Thống Giặt Sấy Tự Động Cleantech: Đón Đầu Vận Hành Resort Hiện Đại!
Tại Sao Hơn 300 Resort Chọn Giải Pháp Giặt Là Cleantech Cho Phòng Giặt Nội Bộ?
Nội Bộ Hóa Phòng Giặt Resort: Đầu Tư Một Lần, Lợi Ích Dài Lâu Cho Kinh Doanh Của Bạn!
Thiết Bị Giặt Cleantech: Tăng Hiệu Quả, Giảm Nhân Sự, Làm Chủ Chất Lượng Đỉnh Cao Cho Resort
Giặt Sạch Chuẩn 5 Sao Với Thiết Bị Giặt Cleantech – Bí Quyết Cho Khu Nghỉ Dưỡng Cao Cấp
Hệ Thống Giặt Sấy Cleantech: Vận Hành Chuyên Nghiệp A-Z Cho Resort
Máy Giặt Sấy Cleantech: Tiêu Chuẩn Vệ Sinh & Tăng Trải Nghiệm Khách Hàng
Thiết Bị Giặt Là Công Nghiệp Cleantech: Tiết Kiệm 30% Chi Phí Cho Resort
Giải Pháp Cleantech: Nâng Tầm Phòng Giặt Thành Trung Tâm Vận Hành Cho Resort 5 Sao
Thuê Ngoài Giặt Là Cho Hotel 70 Giường Tại Ninh Bình – Nên Hay Không?
Phòng Giặt Laundry Shop Cho Resort 150 Phòng Tại Cam Ranh – Giải Pháp Tối Ưu Doanh Thu
[HỎI ĐÁP] TẤT TẦN TẬT CÁC CÂU HỎI THƯỜNG GẶP VỀ DỊCH VỤ GIẶT ỦI CÔNG NGHIỆP 2025
Phòng Giặt Mini Homestay 25 Phòng Mộc Châu - Dưới 500 Triệu
Phòng Giặt Khép Kín Cho Hotel 100 Giường Tại Đà Lạt - Tiết Kiệm Nhân Công
Hệ Thống Giặt Là Khách Sạn Sang Trọng 250 Phòng Đà Nẵng - Giải Pháp Tự Động
Tiêu Chuẩn Xây Dựng Và Thiết Kế Phòng Giặt Khách Sạn 4 Sao 200 Phòng tại Sài Gòn
Tối Ưu Quy Trình Giặt Cho Hotel 60 Phòng Tại Sa Pa: Ngăn Chéo Nhiễm Chỉ Với 5 Bước Đơn Giản
Triển khai Hệ thống Giặt là Chuyên nghiệp cho Khách sạn 300 Phòng tại Hạ Long: Giải pháp Toàn diện v...
Các câu hỏi thường gặp về dịch vụ giặt ủi công nghiệp
Thiết kế dây chuyền giặt là cho resort 80 bungalow Phú Quốc – Quy trình khép kín "3 bước"
Cách Tối Ưu Quy Trình Giặt Ủi Công Nghiệp Cho Khách Sạn
Tối Ưu Hóa Phòng Giặt Khách Sạn 100 Phòng Ven Biển Đà Nẵng: Giải Pháp Giảm 20% Chi Phí Năng Lượng
Mô Hình Hệ Thống Giặt Là Công Nghiệp Cho Homestay
Mô Hình Hệ Thống Giặt Đồ Vải Cho Nhà Khách
Mô Hình Giặt Đồ Vải Cho Khách Sạn 1000 Phòng – Chuẩn Công Nghiệp, Hiệu Quả Cao
Mô Hình Hệ Thống Giặt Đồ Vải Cho Resort 4 Sao – Giải Pháp Tối Ưu Hóa Vận Hành Và Nâng Tầm Dịch Vụ
Hệ Thống Giặt Là Công Nghiệp Cho Khách Sạn 200 Phòng – Chuẩn 4 Sao
Bí Quyết Tối Ưu Hóa Quy Trình Giặt Ủi Công Nghiệp, Tiết Kiệm Thời Gian và Chi Phí
7 Xu hướng kinh doanh tiệm giặt là công nghiệp năm 2025-2026
Làm Thế Nào Để Quần Áo Luôn Khô Ráo Và Thơm Tho - Dù Trời Mưa To Hay Ẩm Ướt?
Thiết Bị trong Cửa Hàng Giặt Là Dân Dụng
Làm thế nào để giặt nhiều quần áo mà vẫn tiết kiệm điện?
BẢO TRÌ MÁY GIẶT CÔNG NGHIỆP: HƯỚNG DẪN CHI TIẾT GIÚP KÉO DÀI TUỔI THỌ THIẾT BỊ
Siêu Thị Bán Máy Giặt Công Nghiệp Giá Rẻ, Chính Hãng 100%

đảm nhiệm vai trò Trưởng phòng, chịu trách nhiệm chính về quy trình lắp đặt, vận hành và kiểm soát chất lượng thiết bị. Với kiến thức chuyên sâu về hệ thống điều khiển tự động hóa, tôi mang đến những bài viết hướng dẫn kỹ thuật chi tiết, quy trình bảo trì chuyên nghiệp và giải pháp tối ưu hóa năng suất máy móc.
Liên hệ: 0904.566.536

